4939 Richmond Rd, Keswick, VA 22947
Toggle Navigation
Images
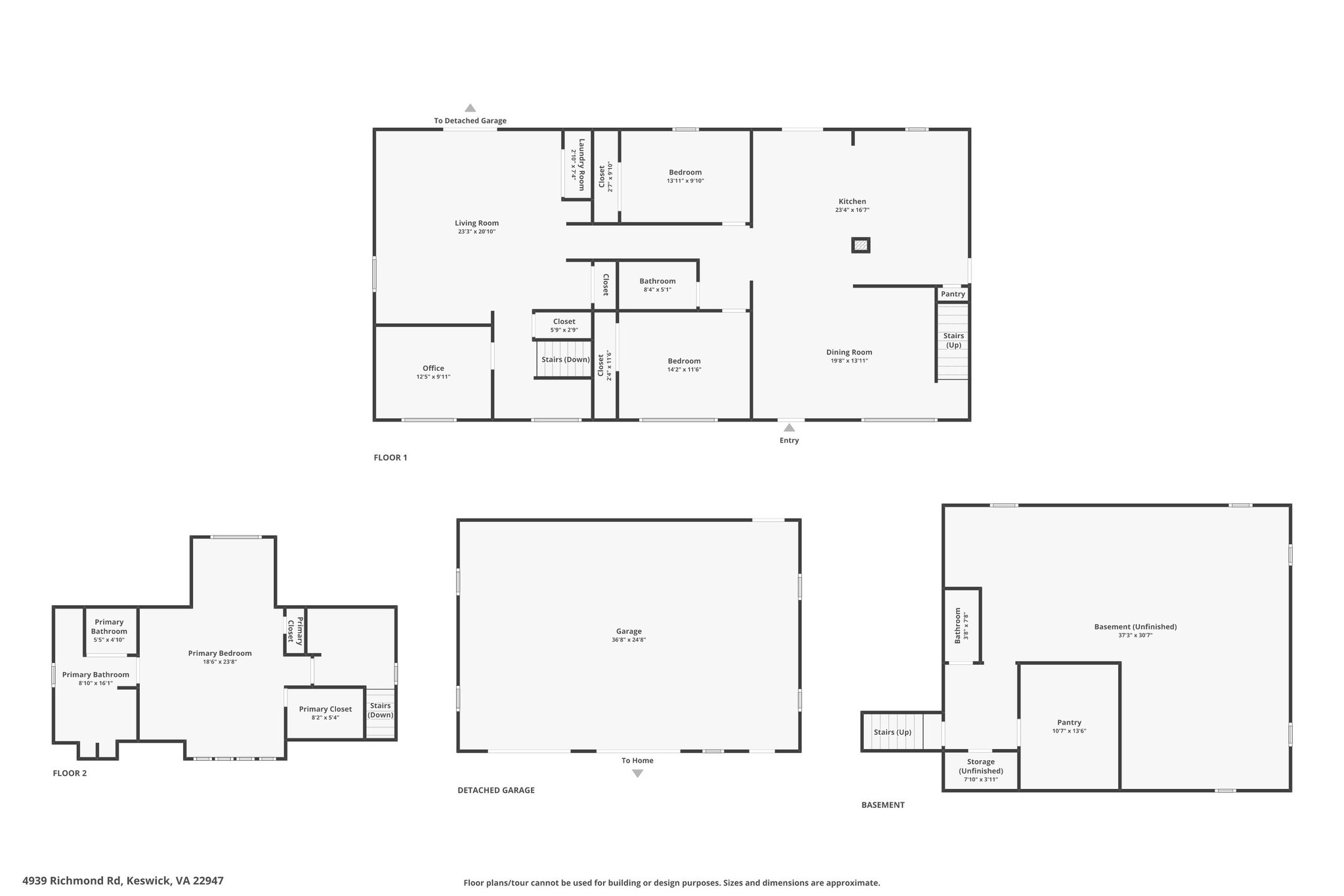
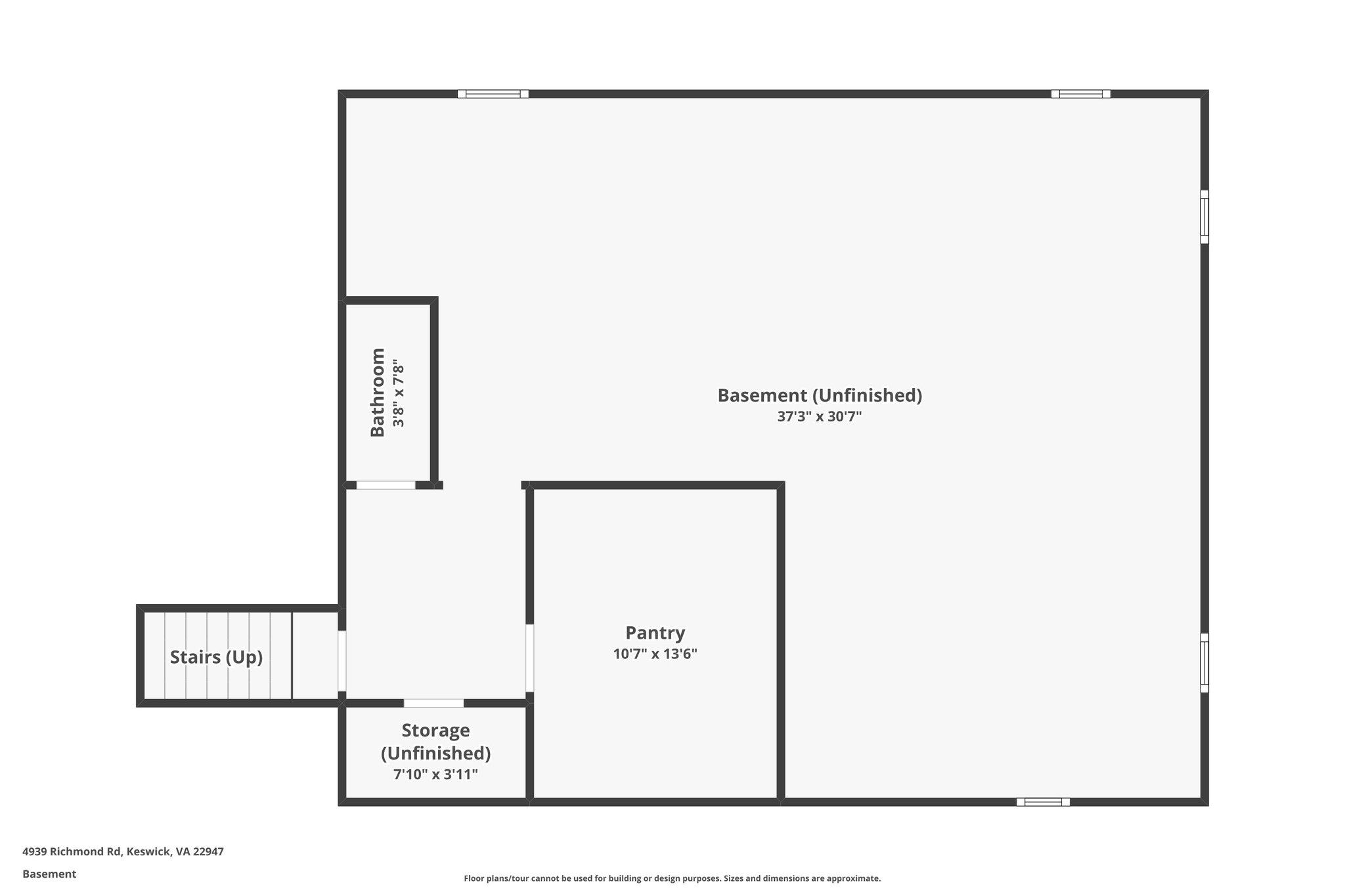
Floor Plans
3D Tour
Map
4939 Richmond Rd
Keswick, VA 22947
Scroll to Content
Images
Slideshow
Photo Grid
Hide
Previous
Next
Show more
Floor Plans
Slideshow
Photo Grid
Hide
Previous
Next
3D Tour